Torrevieja. Costa Blanca South Бунгало. Новое здание

Torrevieja. Costa Blanca South Бунгало. Новое здание

Ссылка  NP-11571

259.000€

  • Площадь

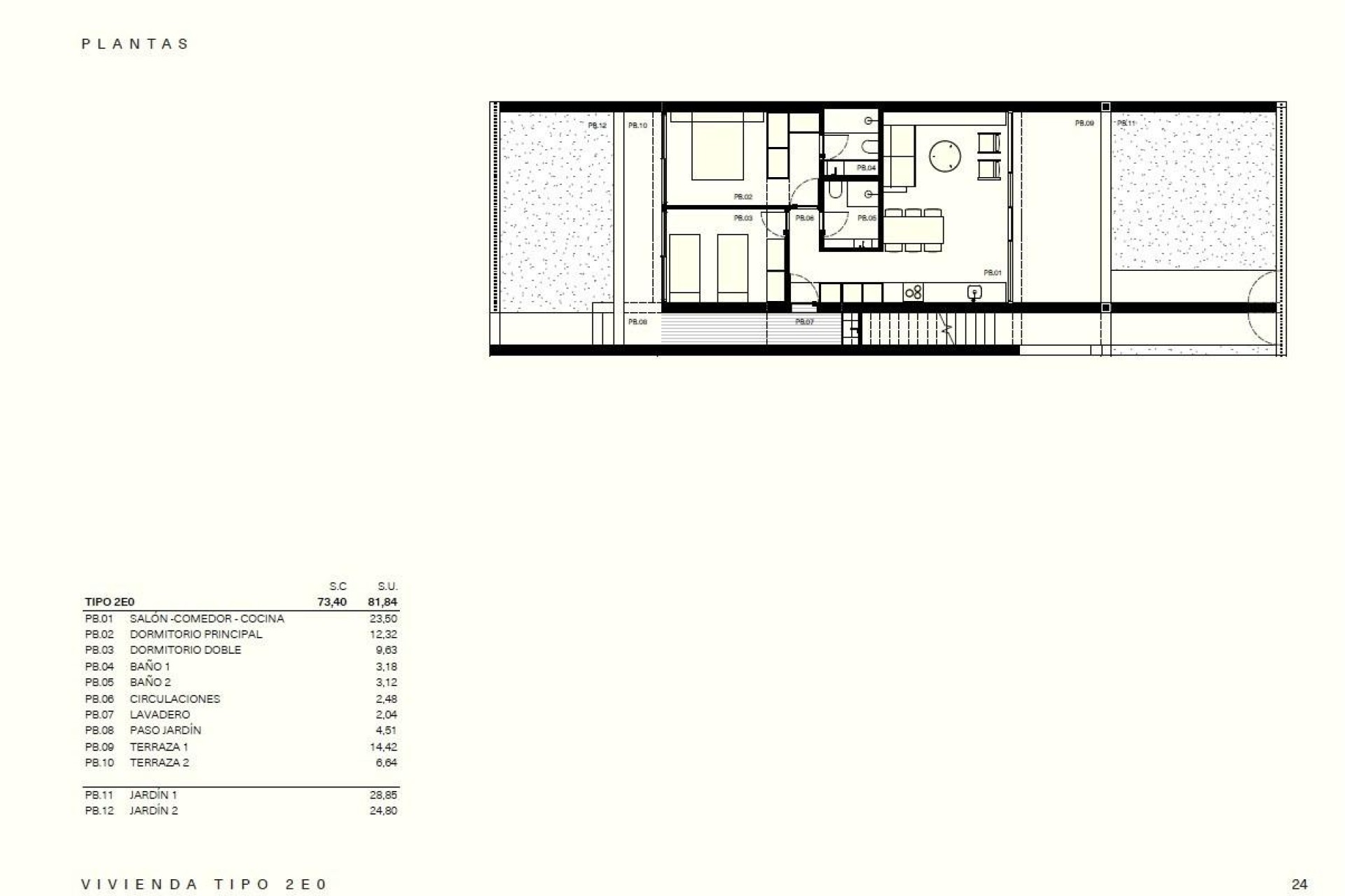
    Площадь

    81m2
  • Участок

    Участок

    53m2
  • Спальни

    Спальни

    2
  • Ванные

    Ванные

    2

Характеристики

Описание

Новые жилые апартаменты в Лос-Бальконес, Торревьеха

Давайте поговорим

Запросить информацию

Ответственный за обработку: Ole International Homes, SL, Цель обработки: Управление и контроль услуг, предлагаемых через веб-сайт недвижимости, Рассылка информации через рассылку и другие, Правовое основание: На основании согласия, Получатели: Данные не передаются, за исключением ведения бухгалтерии, Права заинтересованных лиц: Доступ, исправление и удаление данных, запрос на переносимость, возражение против обработки и запрос на ограничение обработки, Источник данных: Сам субъект данных, Дополнительная информация: Подробную информацию о защите данных можно найти Здесь.
WhatsApp
WhatsApp Мы рядом!