Torrevieja. Costa Blanca South Bungalow. Nouvelle construction

Torrevieja. Costa Blanca South Bungalow. Nouvelle construction

Réf:  NP-11571

259.000€

  • Construit

    Construit

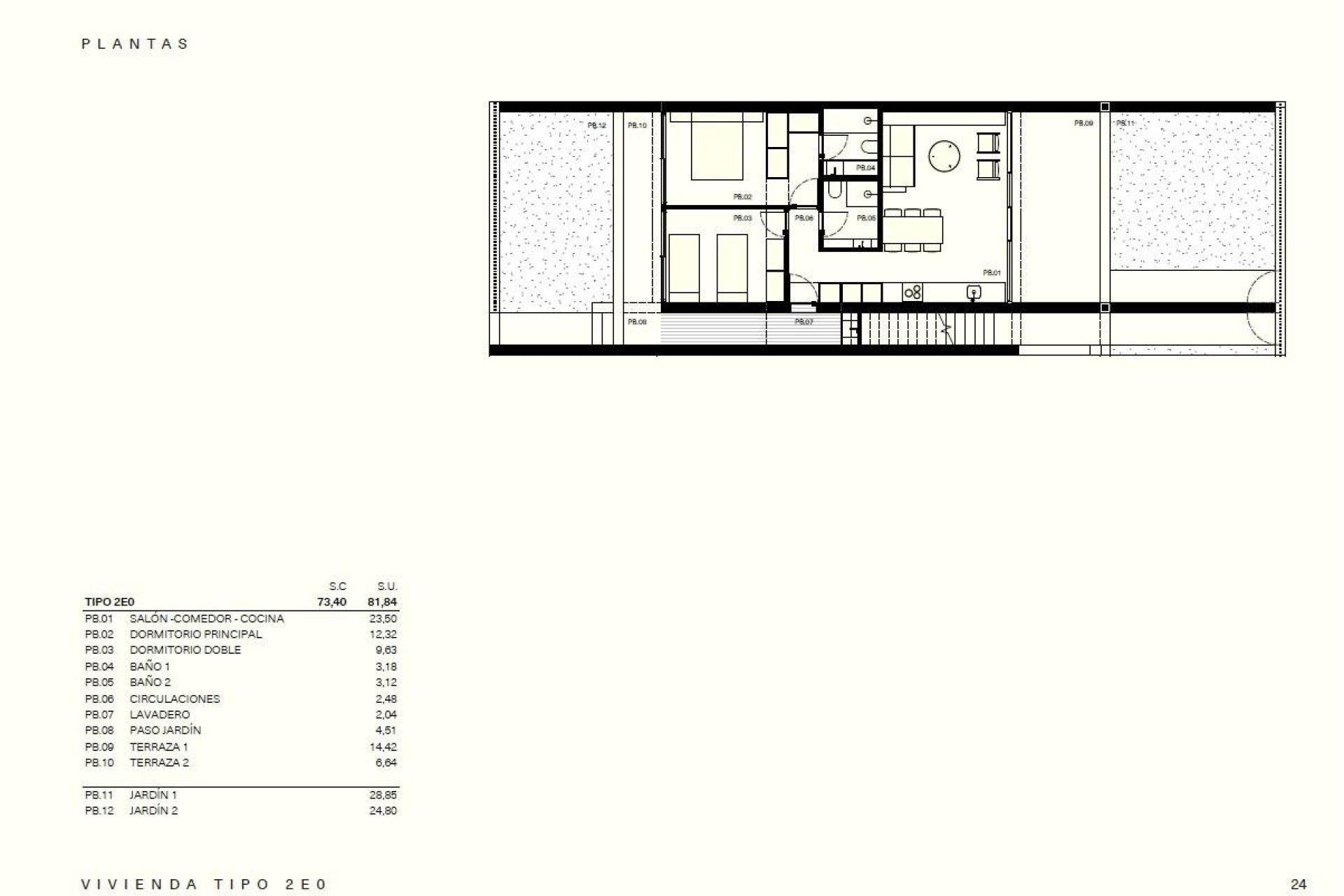
    81m2
  • Terrain

    Terrain

    53m2
  • Chambres

    Chambres

    2
  • Salles de bain

    Salles de bain

    2

Les caractéristiques

La description

Appartements neufs à Los Balcones, Torrevieja

Discutons

Demander des informations

Responsable du traitement: Ole International Homes, SL, Finalité du traitement: Gestion et contrôle des services proposés sur le site Web des Services immobiliers, Envoi d'informations via newsletter et autres, Base légale: Par consentement, Destinataires: Les données ne seront pas partagées, sauf à des fins comptables, Droits des personnes concernées: Accéder, rectifier et supprimer les données, demander leur portabilité, s’opposer au traitement et en demander la limitation, Source des données: La personne concernée, Informations supplémentaires: Vous pouvez consulter les informations supplémentaires et détaillées sur la protection des données Ici.
WhatsApp
WhatsApp Nous sommes là !