ГОТОВАЯ К ПРОДАЖЕ ДВУХЭТАЖНАЯ ВИЛЛА В ФУЭНТЕ АЛАМО, МУРСИЯ
Жилой комплекс таунхаусов, самостоятельных и отдельно стоящих вилл в Фуэнте-Аламо, Мурсия.
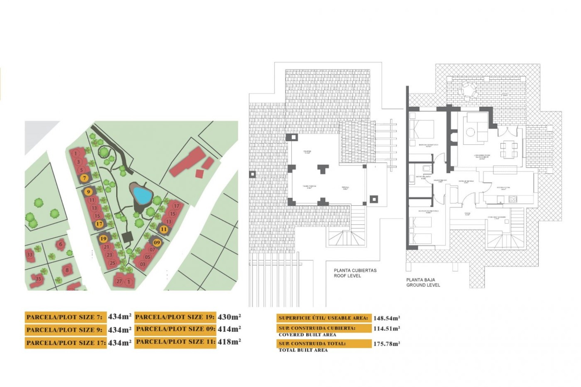
На выбор предлагаются семь различных моделей домов, разработанных на любой вкус.
Дизайн в деревенском стиле в сочетании с высококачественными материалами и акцентом на комфортное жилое пространство - здесь найдется что-то для каждого.
Жители этого частного поселка, состоящего из красивых, просторных домов, также смогут наслаждаться собственными общими садами и бассейнами.
Эта двухэтажная вилла необычного дизайна имеет 2 спальни и 1 ванную комнату, отдельную кухню, гостиную с дверями патио, ведущими на крытое крыльцо и полукрытую террасу на крыше.
Возможность установки частного бассейна за дополнительную плату.
Фуэнте-Аламо-де-Мурсия - город и муниципалитет в регионе Мурсия, на юге Испании. Он расположен в 22 км к северо-западу от Картахены и в 35 км к юго-западу от Мурсии.
Город лежит в бассейне реки Мар Менор, окруженной горами Альгарробо, Лос-Гомес, Лос-Викториас и Карраской.
Вода с этих гор стекает в Рамбла-де-Фуэнте-Аламо, а затем в Мар-Менор.
Фуэнте-Аламо расположен в 30 минутах езды от аэропорта Мурсия - Корвера.