KLUCZ GOTOWY BLIŹNIACZY WILLA W FUENTE ALAMO, MURCIA
Rezydencja kamienic, niezależnych i bliźniaczych willi w Fuente Álamo, Murcia.
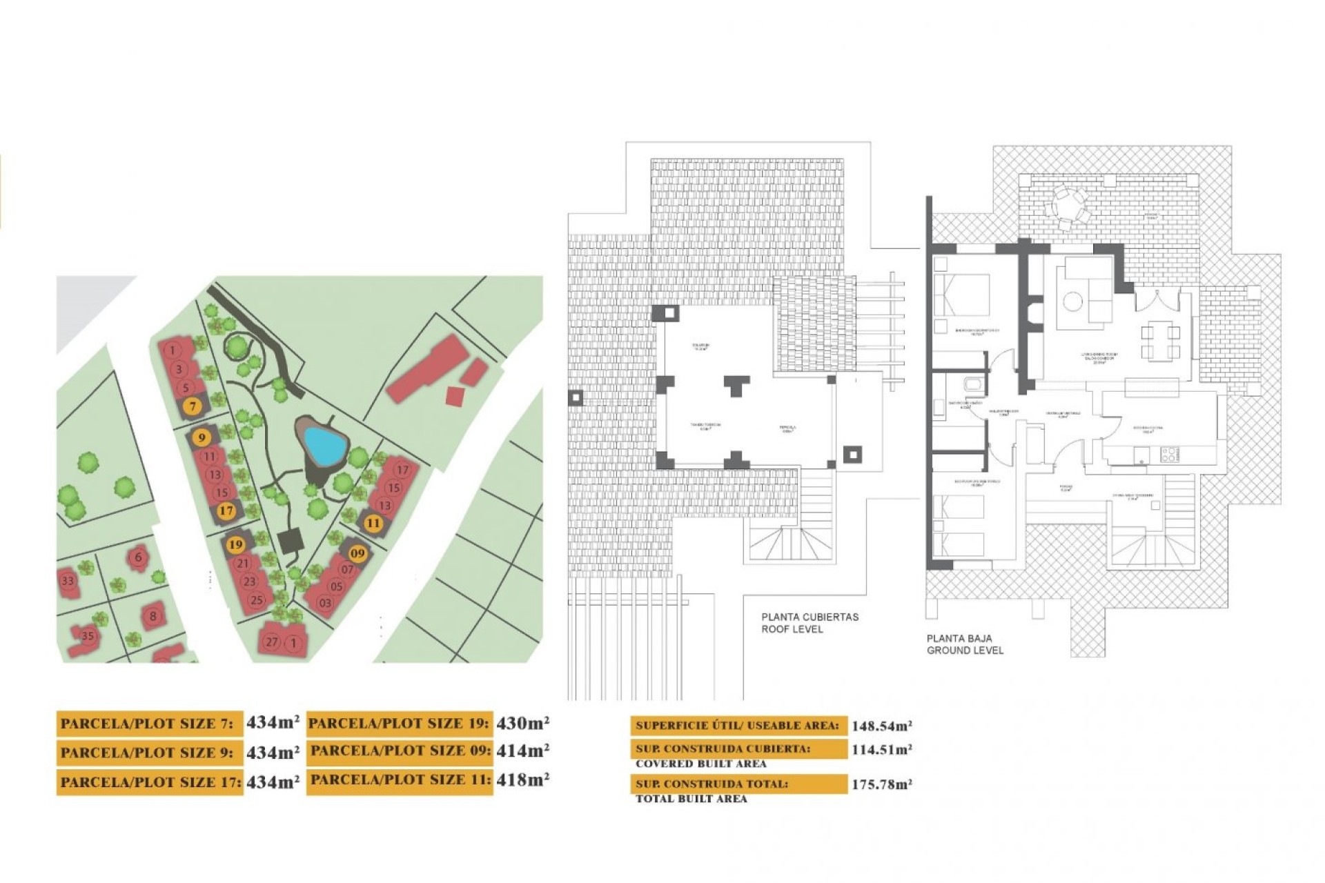
Do wyboru jest siedem różnych modeli domów, zaprojektowanych tak, aby zaspokoić gust każdego.
Rustykalne projekty w połączeniu z najwyższej jakości materiałami i skupieniem się na wygodnej przestrzeni życiowej każdy znajdzie coś dla siebie.
Mieszkańcy tej prywatnej społeczności pięknych, przestronnych domów będą mogli również cieszyć się własnymi wspólnymi ogrodami i basenami.
Ten niezwykły projekt bliźniaczej willi ma 2 sypialnie i 1 łazienkę, niezależną kuchnię, pokój dzienny z drzwiami tarasowymi prowadzącymi na zadaszony ganek i pół zadaszony taras na dachu.
Opcje na prywatny basen za dodatkową opłatą.
Fuente Álamo de Murcia to miasto i gmina w regionie Murcja, w południowej Hiszpanii. Znajduje się 22 km na północny zachód od Cartageny i 35 km na południowy zachód od Murcji.
Miasto leży w basenie Mar Menor otoczonym przez góry Algarrobo, Los Gómez, Los Victorias i Carrascoy.
Woda z tych gór spływa do Rambla de Fuente Álamo, a następnie do Mar Menor.
Fuente Álamo znajduje się 30 minut od lotniska Murcia - Corvera.