Вилла в стиле Ибицы с роскошными удобствами в Хавеа
Эксклюзивный средиземноморский дизайн рядом с пляжем Эль-Ареналь
Эта потрясающая вилла в стиле Ибицы в Хавеа расположена всего в 3 км от знаменитого пляжа Эль-Ареналь, одного из самых оживленных и привлекательных районов северного побережья Коста-Бланка. Расположенная в тихом и хорошо связанном с транспортом жилом районе, недвижимость предлагает исключительное сочетание элегантности, комфорта и современной средиземноморской архитектуры. Хавеа известна своими кристально чистыми водами, живописными бухтами, природными парками, пристанями для яхт и отличными ресторанами, что делает ее очень привлекательным местом как для проживания, так и для инвестиций.
Элегантная планировка интерьера на двух уровнях
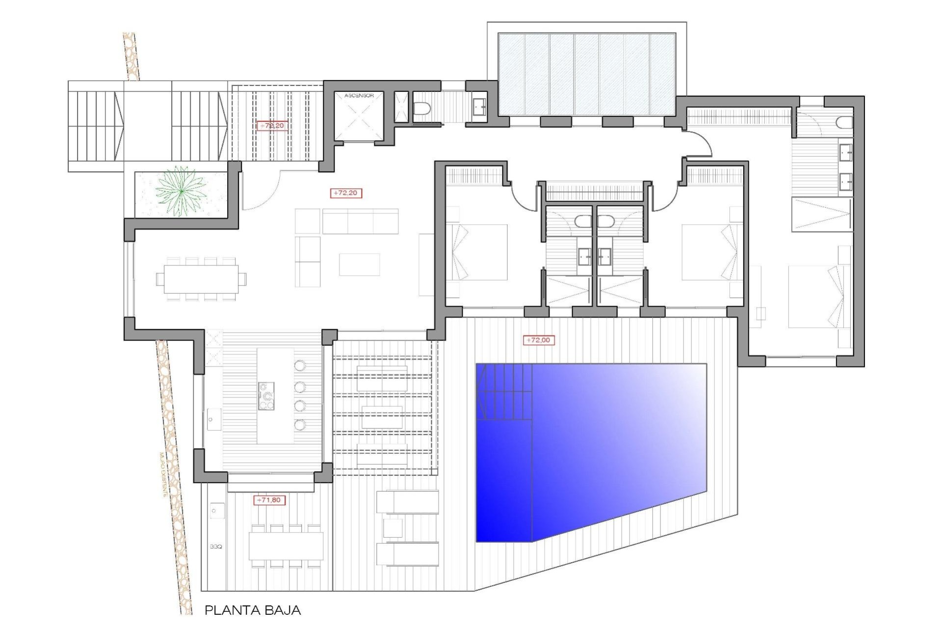
Вилла была тщательно спроектирована для максимального комфорта и стиля. На первом этаже просторная гостиная и столовая плавно переходят в полностью оборудованную кухню, создавая светлое и уютное открытое пространство. На этом уровне также находится лифт для дополнительного удобства, гостевой туалет и центральный холл, соединяющий все зоны.
Есть две спальни с двуспальными кроватями и ванными комнатами, а также впечатляющая главная спальня с большой планировкой, ванной комнатой и встроенной гардеробной.
Открытая зона, спроектированная для средиземноморского стиля жизни
Открытые пространства были созданы, чтобы наслаждаться теплым климатом Хавеи круглый год. На территории виллы есть две элегантные перголы, одна у входа, а другая простирается от гостиной и кухни к открытой террасе, окружающей частный бассейн площадью 38 м2.
Рядом с кухней дополнительная терраса с зоной для барбекю создает идеальные условия для обедов на открытом воздухе и дружеских встреч.
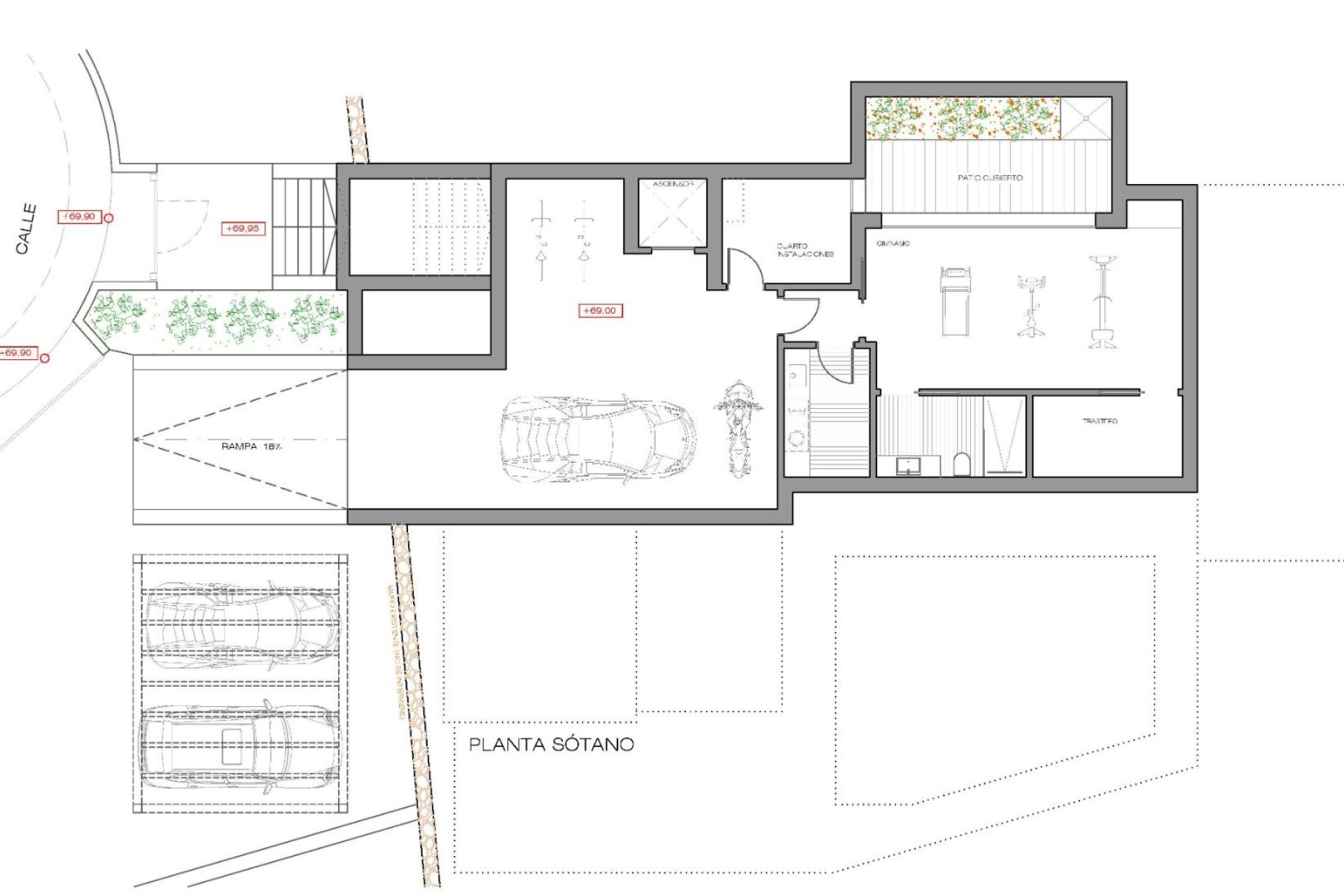
Премиум-подвал с исключительными удобствами
Подвал сочетает в себе функциональность и роскошь, включая открытый гараж, лифт, подсобное помещение, прачечную, тренажерный зал, крытый патио, ванную комнату и просторную кладовую. Этот этаж был спроектирован с учетом современных потребностей и обеспечивает максимальное удобство.
Выгодное расположение в Хавеа
Хавеа предлагает уникальное сочетание природной красоты, возможностей для отдыха и высококачественных услуг.
Основные расстояния от виллы:
Пляж Эль-Ареналь 3 км
Порт и пристань для яхт Хавеа — 7 км
Гольф-клуб Хавеа — 3 км
Аэропорт Аликанте — 100 км
Аэропорт Валенсии — 125 км
Ваш дом на Средиземноморье ждет вас
Если вы ищете постоянное место жительства, роскошный дом для отдыха или выгодную инвестиционную возможность, эта вилла предлагает вам превосходное качество и непревзойденное расположение. Свяжитесь с нами сегодня, чтобы договориться о просмотре и открыть для себя свой новый дом в Хавеа.