НОВЫЕ ВИЛЛЫ В ЭЛЬ-ПОБЛЕС
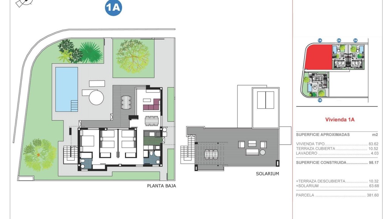
В новостройке будут построены 4 великолепных дома с садами, частной парковкой и возможностью строительства частного бассейна. В непревзойденном месте, рядом с центром города, торговым центром и всеми видами услуг, будут построены дома с тремя спальнями и двумя ванными комнатами, с садом и солярием.
Новые виллы имеют 3 спальни, 2 ванные комнаты, кухню открытого плана с гостиной, встроенные шкафы, частный сад с парковочным местом, частный солярий.
Возможность установки частного бассейна за дополнительную плату.
Характеристики:
-Встроенные встроенные шкафы с вешалками, выдвижными ящиками и внутренним светодиодным освещением.
-Установка линейного светодиодного освещения по всему дому.
-Установка воздуховодов кондиционеров в гостиной и спальнях (включая машину).
-USB зарядные устройства в спальнях.
-Установка индивидуальных фотоэлектрических панелей без батареи на крыше в соответствии с правилами.
-Предварительная установка зарядного устройства для электромобиля.
-Железобетонная конструкция.
-Фасад с однослойной отделкой.
-Внешняя отделка из ПВХ с терморазрывом, двойное остекление с воздушной камерой типа ¨Climalit¨ и низким коэффициентом излучения.
-Армированная входная дверь.
-Фарфоровое или аналогичное напольное покрытие, плинтуса будут покрыты лаком в тон столярным изделиям.
-Вертикальные стены ванных комнат и туалетов из фарфора или аналогичного материала.
-Стены отделаны гладкой пластиковой краской.
-Кухня с высокими и низкими шкафами, столешницей из Silestone или аналогичного материала, оборудованная индукционной плитой со встроенной системой вентиляции и электрической духовкой.
-Подвесная сантехника из стеклокерамики со встроенным бачком.
-Плоские смоляные душевые поддоны, включая душевые шторки.
- Раковина с тумбой и зеркалом со встроенной светодиодной подсветкой во всех ванных комнатах и туалетах.
-Смесительные краны.
-Внутренние двери покрыты белым лаком.
Эльс Поблес расположен между Аликанте и Валенсией, в 1 часе езды от любого из аэропортов.
Эльс-Поблетс находится на равнине, образованной аллювиальными почвами реки Жирона. На побережье Средиземного моря протяженностью около 1 км находится пляж Альмадрава.
Рядом с Денией и Эль-Вергером находятся 24 км великолепных пляжей, отмеченных Голубым флагом.
Город и пляж находятся на расстоянии около 1 км друг от друга. В то время как многие испанские прибрежные города закрыты на зиму, Эльс-Поблетс открыт круглый год со всеми удобствами, такими как бары, банки, магазины, рестораны, супермаркеты, парикмахерские и является дружелюбным городом со смешанными национальностями, в основном испанцами с некоторыми бывшими патами.