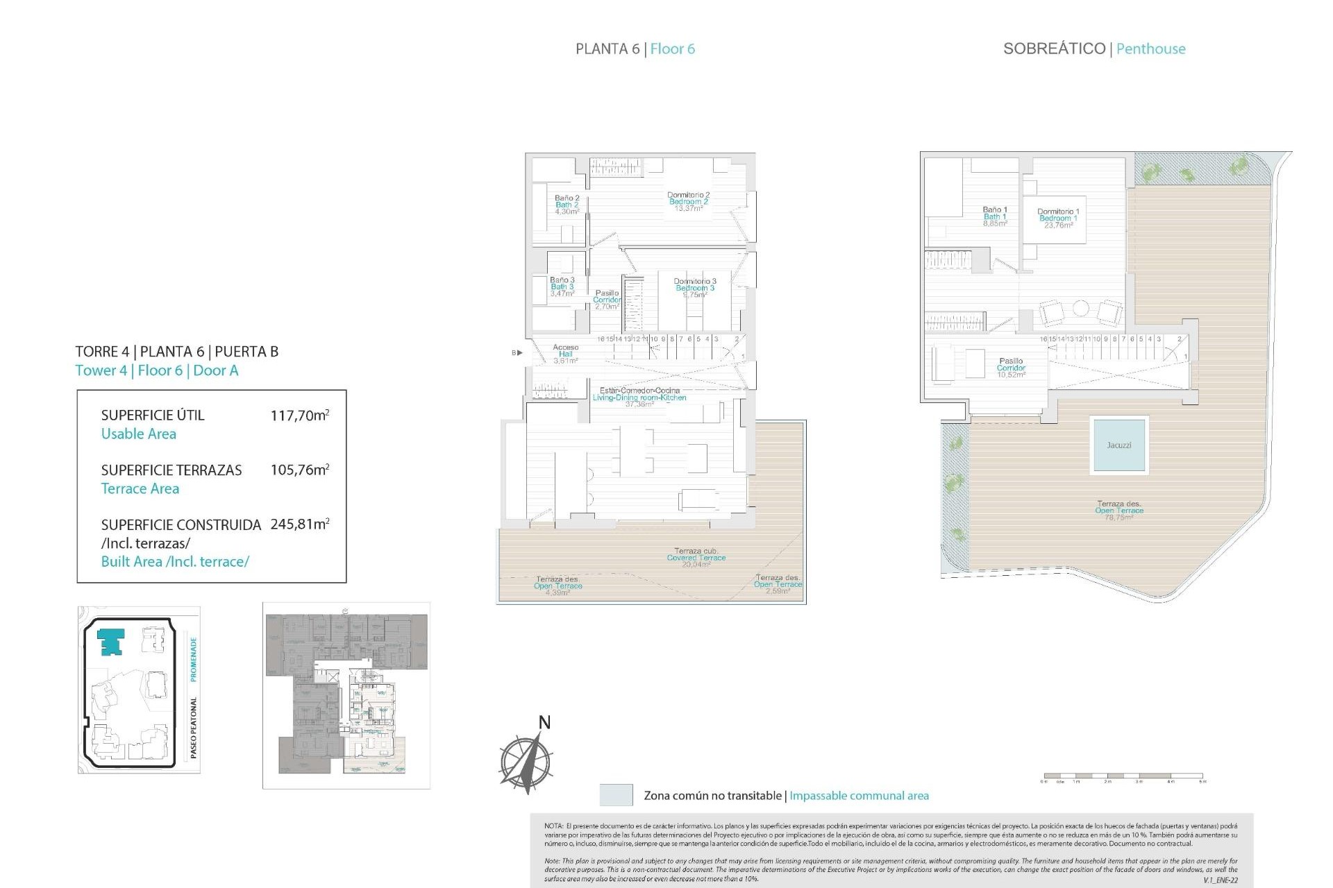
WONDERFUL PENTHOUSE 50M FROM THE BEACH
Do you want to enjoy the sun and the sea from your jacuzzi? Come and see this impressive penthouse with spacious terraces and rooms. You will also have all the amenities offered by the residential complex in which it is integrated, with a large garden and a spectacular pool, and all this just 50 meters from the beach.