Nowe mieszkania w La Nucía – nowoczesne życie w Ciudad del Deporte niedaleko Benidormu
Doskonała lokalizacja w La Nucía na Costa Blanca
Odkryj tę wyjątkową nową inwestycję mieszkaniową położoną w La Nucía, jednej z najbardziej pożądanych lokalizacji na Costa Blanca. Położona w nowatorskiej dzielnicy Ciudad del Deporte, oferuje ona wyjątkowe połączenie nowoczesnej infrastruktury, naturalnego otoczenia i codziennych udogodnień. Zaledwie 7 km od plaż w Benidormie i Altea, La Nucía znana jest ze spokojnej atmosfery, doskonałych obiektów sportowych i wysokiej jakości życia. W okolicy znajdują się również międzynarodowe szkoły, centra handlowe i wszystkie niezbędne usługi w zasięgu ręki, co czyni ją idealnym miejscem zarówno do stałego zamieszkania, jak i na wakacyjne pobyty.
Nowoczesne apartamenty zaprojektowane z myślą o śródziemnomorskim stylu życia
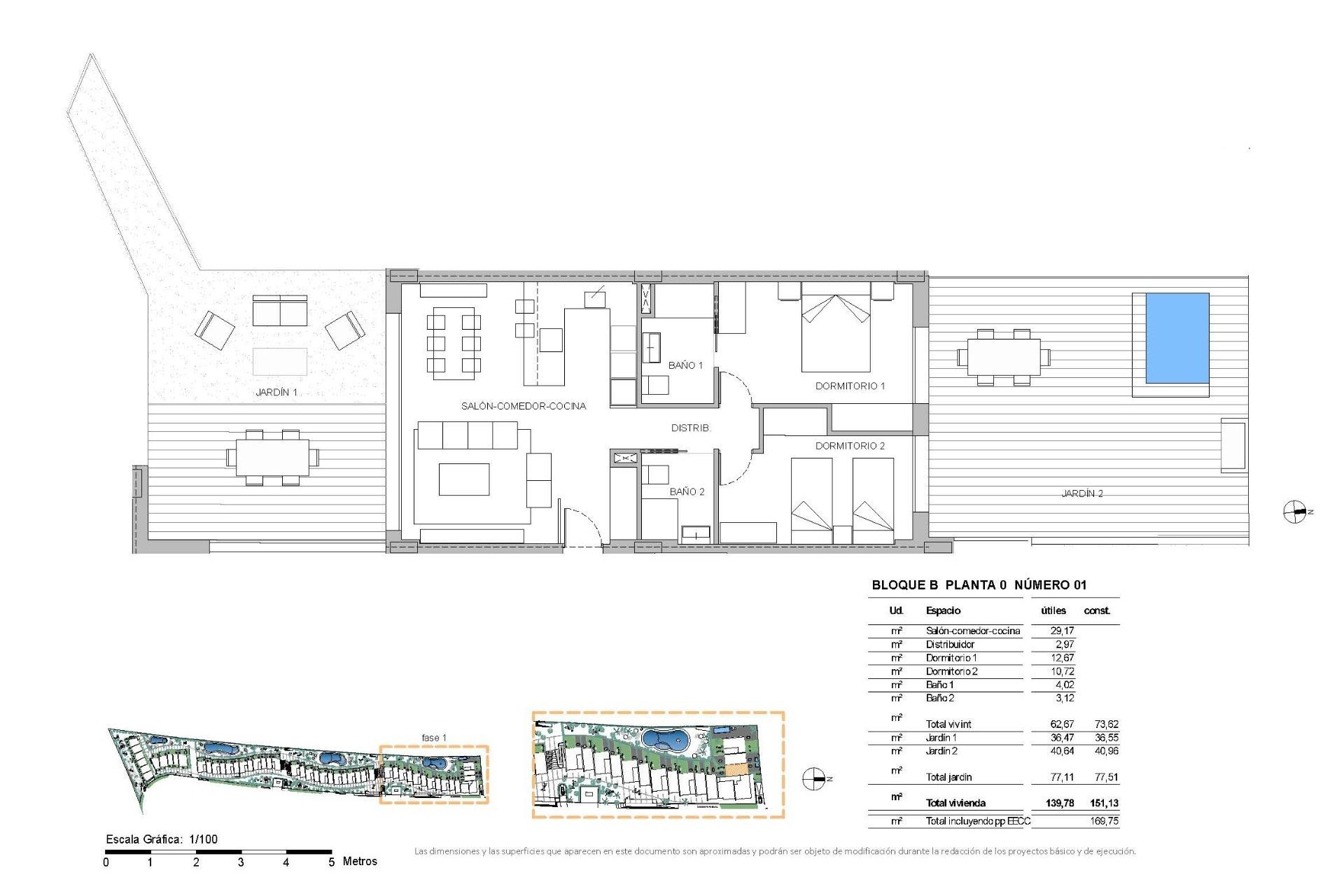
Pierwsza faza obejmuje 64 stylowe apartamenty z układem 2 i 3 sypialni. Nabywcy mogą wybierać spośród mieszkań na parterze z prywatnymi ogrodami, apartamentów na środkowych piętrach z przestronnymi tarasami lub penthouse'ów z prywatnymi solarium. Większość nieruchomości posiada dwa duże tarasy wychodzące na wschód i południowy zachód, co pozwala cieszyć się słońcem przez cały dzień i w pełni wykorzystać śródziemnomorski klimat.
Wnętrza zaprojektowano na planie otwartym, maksymalizując dostęp naturalnego światła i tworząc płynne połączenie między przestrzenią wewnętrzną a zewnętrzną. W pełni wyposażone kuchnie z urządzeniami marki Bosch idealnie integrują się z częścią dzienną, a łazienki wyposażono w ogrzewanie podłogowe, nowoczesne meble, lustra i kabiny prysznicowe.
Wysokiej jakości wykończenia i efektywność energetyczna
Każdy dom jest zbudowany z materiałów najwyższej jakości i przy użyciu nowoczesnych technologii, aby zapewnić komfort i zrównoważony rozwój. Wyposażenie obejmuje okna z podwójnymi szybami i izolacją termiczną, rolety z napędem elektrycznym, wzmocnione drzwi antywłamaniowe oraz system aerotermiczny do ogrzewania wody i klimatyzacji. Każdy apartament posiada również prywatne miejsce parkingowe i schowek w podziemnym garażu.
Ekskluzywne strefy wspólne sprzyjające stylowi życia i dobremu samopoczuciu
Kompleks oferuje wyjątkowe udogodnienia wspólne zaprojektowane z myślą o relaksie, wypoczynku i produktywności. Mieszkańcy mogą korzystać z dużego basenu otoczonego ogrodami krajobrazowymi, w pełni wyposażonej siłowni oraz spa o powierzchni ponad 200 m² z jacuzzi, sauną i łaźnią turecką. Dodatkowe udogodnienia obejmują klub towarzyski z przestrzeniami coworkingowymi oraz plac zabaw dla dzieci, tworząc tętniące życiem i komfortowe środowisko społecznościowe.
Doskonała komunikacja i pobliskie atrakcje
Plaże w Benidormie 7 km
Altea 8 km
Centrum miasta La Nucía 3 km
Lotnisko w Alicante 60 km
Pole golfowe Villaitana 6 km
Port w Altea 10 km
Okazja inwestycyjna i śródziemnomorski styl życia
Ta inwestycja oferuje nie tylko nowoczesne mieszkanie, ale także doskonałą okazję inwestycyjną, z opcjonalnymi usługami zarządzania wynajmem, zaprojektowanymi w celu maksymalizacji zwrotu z inwestycji, gdy nieruchomość nie jest użytkowana. Skontaktuj się z nami już dziś, aby otrzymać więcej informacji lub umówić się na oglądanie i zabezpieczyć swoją nową nieruchomość w La Nucía.
403