Nieuwbouwwoningen te koop in Pilar de la Horadada, op 3 km van het strand
Boutique woonproject in Pilar de la Horadada
Ontdek dit exclusieve nieuwbouwproject met moderne bungalows in Pilar de la Horadada, de meest zuidelijke stad van de Costa Blanca. Dit boutique project bestaat uit slechts 14 zorgvuldig ontworpen woningen met 2 of 3 slaapkamers en 2 badkamers, die een ideale combinatie bieden van comfort, stijl en mediterrane levensstijl.
Het project is gelegen in een rustige woonwijk op loopafstand van het stadscentrum, waardoor bewoners gemakkelijk toegang hebben tot winkels, restaurants, supermarkten en essentiële voorzieningen. Pilar de la Horadada staat bekend om zijn gastvrije sfeer, traditionele Spaanse charme en levendige hoofdstraat vol cafés, boetiekjes en charmante pleintjes.
Moderne bungalows met privé buitenruimtes
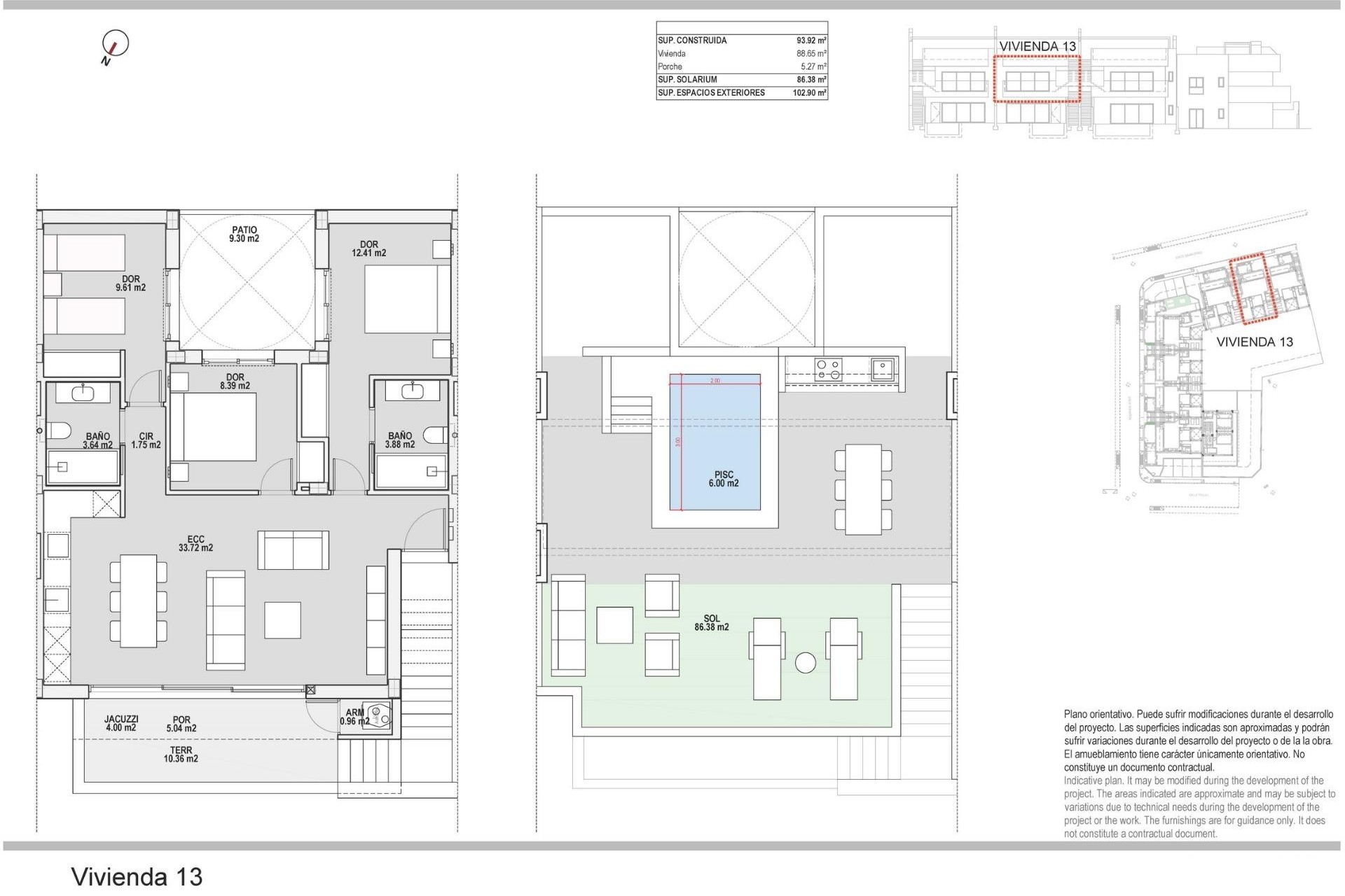
De woningen zijn ontworpen met een licht interieur en een functionele indeling, perfect voor zowel permanent wonen als vakantiegebruik.
De bungalows op de begane grond hebben een privétuin en een privézwembad, waardoor ze de perfecte omgeving vormen om te genieten van het buitenleven, te zonnebaden of familie en vrienden te ontvangen.
De bungalows op de bovenste verdieping hebben een ruim terras en een privé-solarium op het dak. Het solarium is voorzien van een zomerkeuken en biedt de mogelijkheid om tegen meerprijs een privézwembad of jacuzzi toe te voegen, waardoor het een ideale ruimte is om te ontspannen terwijl u geniet van het warme mediterrane klimaat en het weidse uitzicht.
Elke woning beschikt over een eigen parkeerplaats binnen het wooncomplex voor extra gemak.
Hoogwaardige bouw en moderne voorzieningen
Deze nieuwbouwwoningen zijn gebouwd met hoogwaardige materialen en moderne installaties die zijn ontworpen om het hele jaar door comfort en energie-efficiëntie te garanderen.
Aluminium buitenschrijnwerk met thermische onderbreking
Volledig ingerichte keukens met inbegrepen apparatuur
Badkamers uitgerust met spiegels en doucheschermen
LED-verlichting binnen en buiten
Warmwatersysteem met energiezuinige aerothermische technologie
Voorbereiding voor airconditioning met luchtkanalen
De combinatie van modern design en praktische voorzieningen maakt deze woningen een uitstekende keuze voor kopers die op zoek zijn naar een eigendom in eigentijdse stijl aan de Costa Blanca.
Uitstekende locatie dicht bij stranden en golfbanen
Pilar de la Horadada ligt op een strategische locatie dicht bij enkele van de beste stranden en golfbanen in de regio.
Strand van Torre de la Horadada 3 km
Strand van Mil Palmeras 3 km
Lo Romero Golf 6 km
Internationale luchthaven van Murcia 45 km
Luchthaven van Alicante Elche 75 km
Het gebied biedt ook uitstekende wegverbindingen naar nabijgelegen kustplaatsen, jachthavens en recreatiefaciliteiten, waardoor het een perfecte uitvalsbasis is om de Costa Blanca en Costa Calida te verkennen.
Vind uw nieuwe woning aan de Costa Blanca
Als u op zoek bent naar een moderne nieuwbouwwoning in de buurt van het strand met uitstekende voorzieningen en een fantastische locatie, dan is dit woonproject in Pilar de la Horadada een uitstekende kans. Neem vandaag nog contact met ons op voor meer informatie of om een bezichtiging in te plannen.