Nieuwe bungalows en herenhuizen in Cox, Alicante
Exclusief woonproject met 26 woningen
Ontdek deze nieuwe woonwijk in Cox, een charmant stadje in de regio Vega Baja in Alicante. Het project omvat 26 moderne woningen, waaronder bungalows en herenhuizen met 2 of 3 slaapkamers, ontworpen om comfort, privacy en mediterraan leven op zijn best te bieden. Cox staat bekend om zijn rustige omgeving, traditionele gastronomie en prachtige natuurlijke omgeving, waardoor het een ideale locatie is voor gezinnen, vakantiegangers en investeerders.
Woningopties op maat van uw levensstijl
Kies uit een verscheidenheid aan woningtypes die zijn aangepast aan verschillende behoeften:
Bungalows op de begane grond met privétuin
Bungalows op de bovenste verdieping met terras en privésolarium
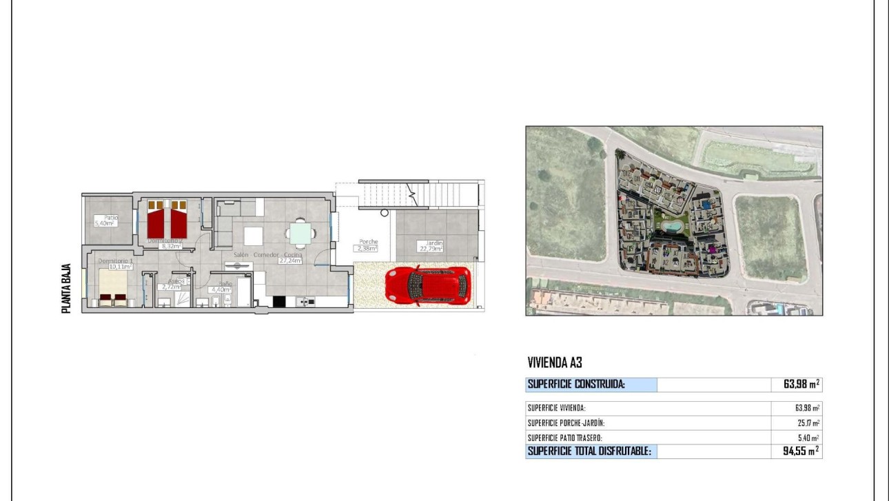
Rijtjeshuizen met tuin, meerdere terrassen en privésolarium
Alle bungalows op de begane grond en rijtjeshuizen hebben een eigen parkeerplaats op het perceel, wat gemak en veiligheid garandeert. Elke woning is ontworpen met functionele indelingen, veel natuurlijk licht en een traditionele esthetiek met een modern interieur.
Kwaliteitsvoorzieningen en modern comfort
De woningen zijn uitgerust met essentiële voorzieningen van hoge kwaliteit die het dagelijks leven vergemakkelijken. Deze omvatten LED-verlichting binnen en buiten, elektrische rolluiken, inbouwkasten, een beveiligde toegangsdeur en voorbereiding voor zonnepanelen. De keukens zijn volledig ingericht met apparatuur, terwijl de badkamers zijn voorzien van meubilair, spiegels en douchewanden. De solariums beschikken ook over buitenkeukens, ideaal om gasten te ontvangen en te genieten van het mediterrane klimaat.
Gemeenschappelijke voorzieningen voor alle bewoners
Het wooncomplex biedt aantrekkelijke gemeenschappelijke ruimtes, waaronder een zwembad omgeven door ligweiden en aangelegde zones, perfect om te ontspannen en te socializen.
Toplocatie met uitstekende verbindingen
Deze ontwikkeling ligt in een goed bereikbaar gebied en biedt snelle toegang tot grote steden en essentiële voorzieningen:
Internationale luchthaven van Alicante: 40 km
Orihuela: 8 km
Elche: 20 km
Murcia: 25 km
Alicante: 48 km
La Finca Golf: 12 km
Vistabella Golf: 14 km
Cox biedt gemakkelijke toegang tot de snelwegen AP 7 en A 7, waardoor u zich vlot door de Costa Blanca kunt verplaatsen. Nabijgelegen attracties zijn onder andere winkelgebieden, sportfaciliteiten, gezondheidscentra en prachtige zandstranden zoals Guardamar del Segura en Torrevieja.
Uw nieuwe thuis in het hart van de Costa Blanca
Of u nu op zoek bent naar een permanente woning, een vakantiehuis of een investeringsobject, deze woningen in Cox bieden een uitstekende prijs-kwaliteitverhouding en levensstijl.
Neem vandaag nog contact met ons op om een bezichtiging in te plannen en uw ideale woning in dit uitzonderlijke project te bemachtigen.