Villas adosadas de nueva construcción frente al mar en Moncofa con vistas al mar
Ubicación privilegiada en la costa de Castellón
Descubra una exclusiva promoción de villas adosadas de estilo contemporáneo situadas en primera línea de playa en Moncofa, entre las localidades costeras de Chilches y Moncofa. Este entorno privilegiado en la Costa del Azahar ofrece acceso directo a tranquilas playas de arena y un relajado estilo de vida mediterráneo. La zona es ideal tanto para residencia permanente como para uso vacacional, con restaurantes locales, chiringuitos, supermercados y servicios esenciales a poca distancia. Moncofa está bien comunicada por carretera, lo que permite un fácil acceso a localidades cercanas como Castellón y Valencia.
Diseño moderno y distribución funcional
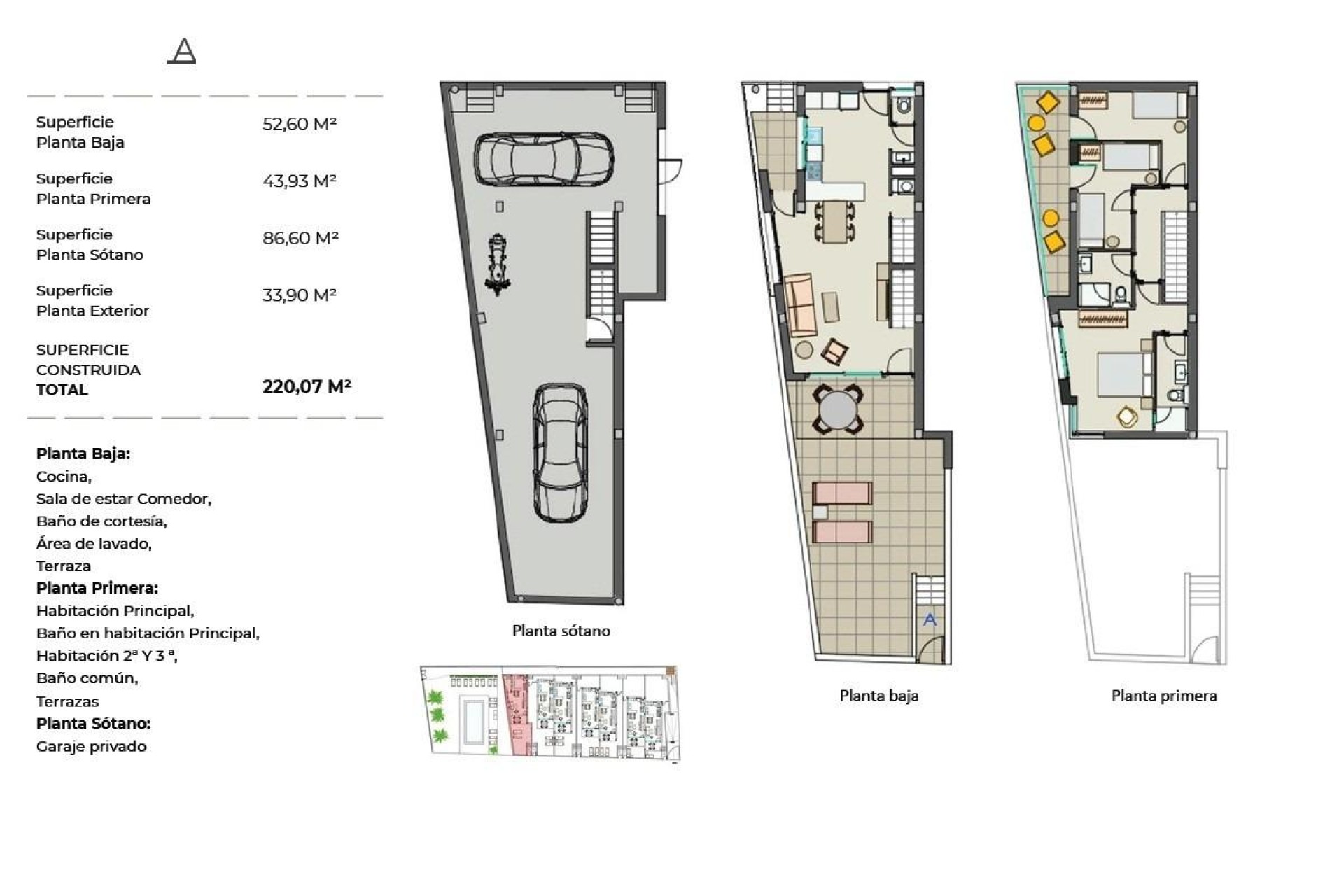
Esta promoción boutique consta de tan solo 7 elegantes viviendas, diseñadas con líneas arquitectónicas limpias y centradas en el confort y la vida cotidiana. Cada vivienda cuenta con 3 dormitorios, 2 baños (uno de ellos en suite) y un aseo adicional para invitados. Las viviendas se distribuyen en tres niveles, lo que maximiza el espacio y la luz natural.
La planta baja ofrece una zona de salón-comedor diáfana con una cocina totalmente equipada, que se conecta a la perfección con una terraza privada con hermosas vistas al mar. La primera planta alberga los dormitorios, incluida una espaciosa suite principal, mientras que algunas unidades también cuentan con una terraza en este nivel. El sótano cuenta con un garaje privado para 1 o 2 vehículos y espacio de almacenamiento adicional.
Acabados de calidad y listas para entrar a vivir
Todas las villas se entregan completamente amuebladas. Las cocinas incluyen electrodomésticos, y los baños vienen equipados con muebles, espejos y mamparas de ducha. Las viviendas también cuentan con aire acondicionado totalmente instalado y un eficiente sistema aerotérmico para el agua caliente, lo que garantiza el confort y la eficiencia energética durante todo el año.
Comunidad y estilo de vida exclusivos
El complejo residencial cuenta con una piscina comunitaria y jardines paisajísticos, todo ello situado en primera línea de playa. Esto crea un ambiente tranquilo y seguro, perfecto para disfrutar del clima mediterráneo y de la vida al aire libre.
Distancias a puntos de interés clave
Playa de Moncofa: 0 km
Playa de Chilches: 2 km
Centro de Castellón: 30 km
Ciudad de Valencia: 50 km
Aeropuerto de Valencia: 55 km
Aeropuerto de Castellón: 45 km
Campos de golf más cercanos: aproximadamente 20 km
Tu hogar mediterráneo te espera
Tanto si buscas una residencia permanente, una vivienda vacacional o una inversión inteligente, estas villas adosadas frente al mar en Moncofa ofrecen una oportunidad única para disfrutar del mar, el confort y el diseño moderno en una de las zonas costeras más auténticas de España. Ponte en contacto con nosotros hoy mismo para obtener más información o concertar una visita.
403