MEDITERRANEO EN ESTADO PURO, DENTRO Y FUERA DE TU HOGAR
A medio camino entre el Pico del León dormido y la Bahía de Altea, Polop de la Marina es el municipio que alberga esta villa de nueva construcción.
Ubicado en una tranquila zona residencial, rodeada de un entorno incomparable, esta villa es el lugar perfecto para tomar un descanso después de un día disfrutando del Mediterráneo en estado puro.
Por su ubicación, a tan solo unos minutos de las mejores calas y playas de arena blanca (El Albir, Altea, Calpe y Villajoyosa) y cerca de excelentes campos de golf, centros deportivos y parques temáticos, esta villa se convertirá en tu refugio ideal para explorar la cultura, naturaleza y gastronomía de la Costa Blanca.
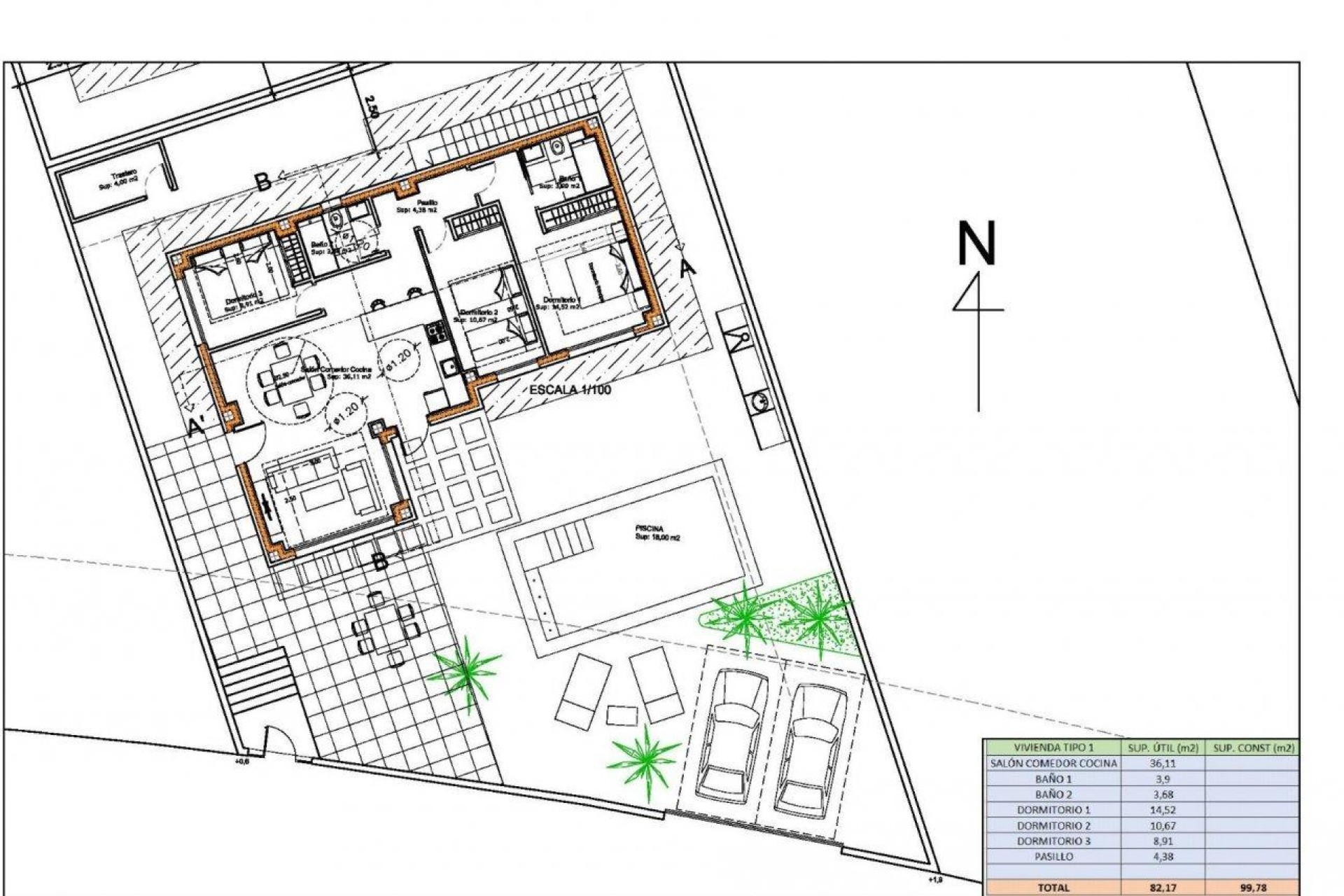
Su diseño arquitectónico y amplia distribución en una sola planta, permite que, a través de enormes ventanales, todas las habitaciones tengan acceso directo a la zona de piscina privada y barbacoa.
Además, el espectacular solárium de 60 m2 con acceso directo desde el jardín te cautivará con sus puestas de sol y vistas al Mediterráneo.
Con 400 m2 de parcela y 100 m2 de superficie la villa se distribuye en salón - cocina totalmente equipada, 3 habitaciones dobles y 2 baños, ambos con sistema de calefacción por suelo radiante. La preinstalación de aire acondicionado y los mejores acabados del mercado harán que disfrutes de todas las comodidades que te mereces en un entorno genuinamente mediterráneo.