Apartamentos de nueva construcción en Torrevieja a solo 600 m de la Playa del Cura
Ubicación privilegiada en el corazón de Torrevieja
Descubra estos apartamentos y áticos a estrenar en una de las zonas más cotizadas de Torrevieja, a solo 600 m de la Playa del Cura y a 400 m del paseo marítimo. Situado en el centro de la ciudad, este animado barrio ofrece todos los servicios esenciales a poca distancia, incluyendo supermercados, tiendas, restaurantes, cafeterías y transporte público. Torrevieja es una conocida ciudad costera de la Costa Blanca, famosa por su clima mediterráneo templado, su animado ambiente y su estilo de vida junto al mar durante todo el año.
Apartamentos modernos con distribuciones espaciosas
Esta exclusiva promoción nueva consta de solo 14 apartamentos y áticos entre estudios, 1 o 2 dormitorios, diseñados para ofrecer comodidad, funcionalidad y estilo contemporáneo. Todas las viviendas incluyen una cocina abierta conectada con el salón-comedor, equipada con electrodomésticos, lo que crea interiores luminosos y acogedores. Los dormitorios cuentan con armarios empotrados y los baños están totalmente equipados con muebles, espejos, suelo radiante y mamparas de ducha.
Acabados de calidad y características de eficiencia energética
Los apartamentos están construidos con materiales de alta calidad y un fuerte enfoque en la eficiencia energética. La carpintería exterior de aluminio incluye tecnología de rotura de puente térmico y doble acristalamiento para el aislamiento térmico y acústico. Las persianas motorizadas añaden comodidad y seguridad. Cada vivienda cuenta con preinstalación de aire acondicionado y calefacción por conductos, puertas de entrada reforzadas, pack de iluminación y puertas interiores lacadas en blanco. El agua caliente se produce mediante un sistema aerotérmico, lo que reduce el consumo de energía y mejora la sostenibilidad.
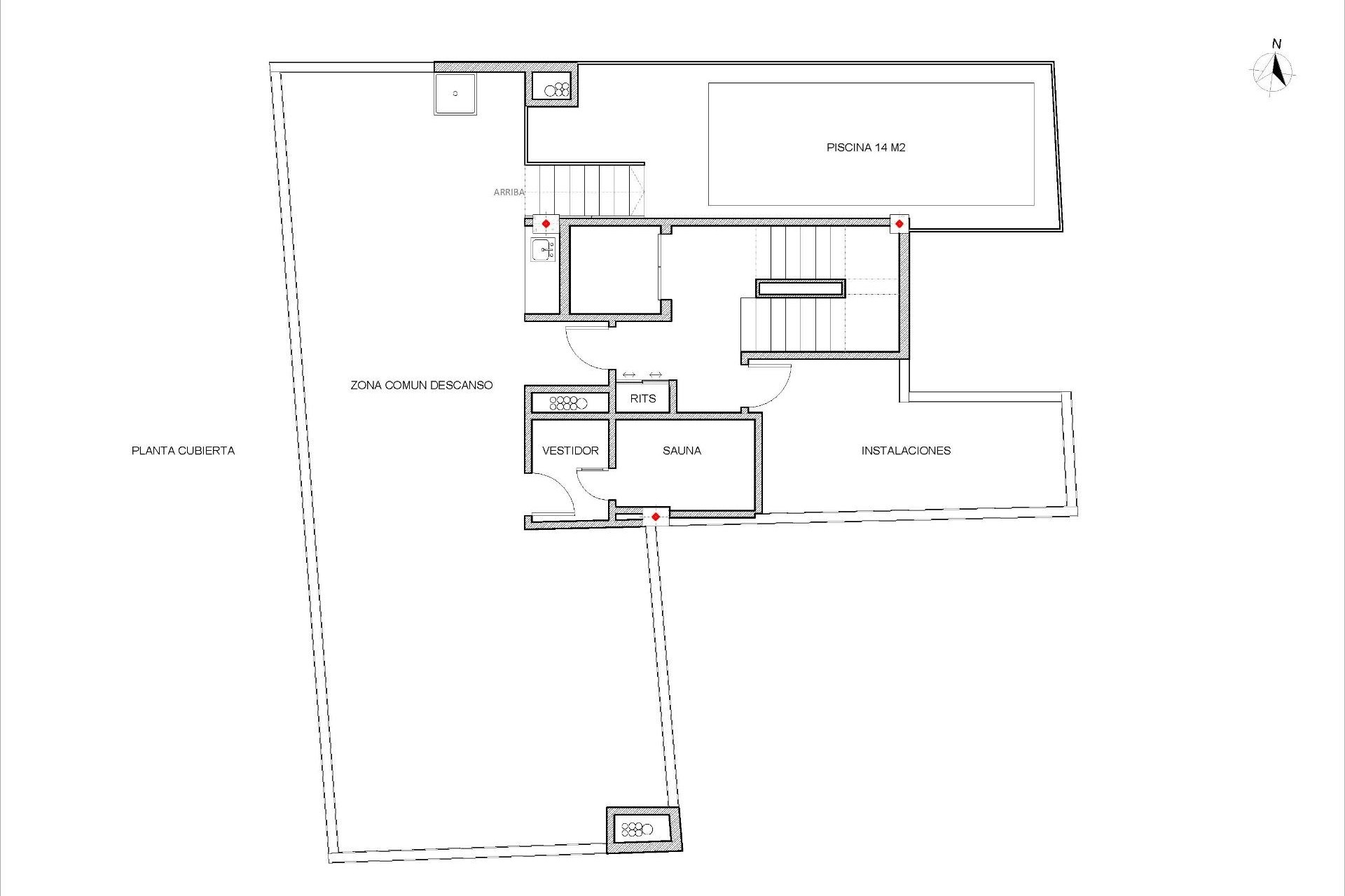
Solárium en la azotea con piscina comunitaria
Los residentes pueden disfrutar de un solárium exclusivo en la azotea con piscina comunitaria, barbacoa, sauna y zona de solarium con tumbonas, accesible por ascensor o escaleras. Esta zona privada es perfecta para relajarse, tomar el sol y disfrutar de las vistas panorámicas de la ciudad. Ofrece un refugio tranquilo sobre las animadas calles de Torrevieja y añade un valor significativo a la promoción.
Estilo de vida y alrededores de Torrevieja
Torrevieja es conocida por su extenso litoral, sus playas de arena y sus emblemáticas salinas. El Parque Natural de las Lagunas de La Mata y Torrevieja se encuentra a unos 5 km y ofrece rutas de senderismo y paisajes únicos. Varios campos de golf, como Villamartin Golf y Las Colinas Golf, se encuentran a entre 12 y 18 km. El puerto deportivo y el puerto de Torrevieja están a aproximadamente 1 km. El aeropuerto de Alicante está a unos 45 km y el aeropuerto internacional de Murcia a unos 65 km, ambos con excelentes conexiones europeas.
Su hogar en la costa le espera
No pierda esta oportunidad de adquirir un moderno apartamento de nueva construcción cerca de la playa en Torrevieja. Póngase en contacto con nosotros hoy mismo para obtener más información o concertar una visita privada.