Torrevieja. Costa Blanca Sur Bungalow. Obra nueva

Torrevieja. Costa Blanca Sur Bungalow. Obra nueva

Ref:  NP-37641

340.000€

  • Construido

    Construido

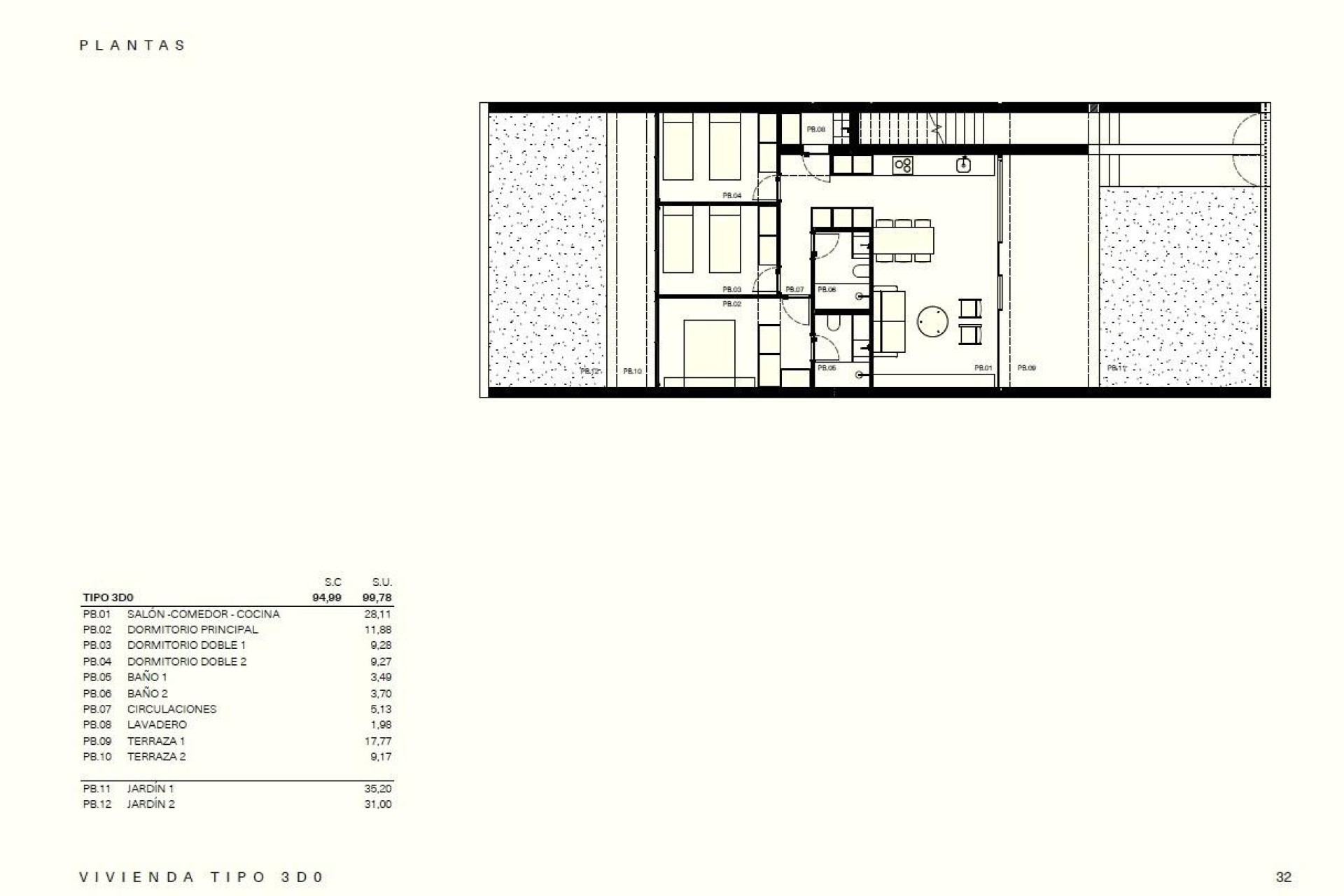
    99m2
  • Parcela

    Parcela

    76m2
  • Dormitorios

    Dormitorios

    3
  • Baños

    Baños

    2

Características

Descripción

Apartamentos residenciales de nueva construcción en Los Balcones, Torrevieja

Hablemos

Solicitar información

Responsable del tratamiento: Ole International Homes, SL, Finalidad del tratamiento: Gestión y control de los servicios ofrecidos a través de la página Web de Servicios inmobiliarios, Envío de información a traves de newsletter y otros, Legitimación: Por consentimiento, Destinatarios: No se cederan los datos, salvo para elaborar contabilidad, Derechos de las personas interesadas: Acceder, rectificar y suprimir los datos, solicitar la portabilidad de los mismos, oponerse altratamiento y solicitar la limitación de éste, Procedencia de los datos: El Propio interesado, Información Adicional: Puede consultarse la información adicional y detallada sobre protección de datos Aquí.
WhatsApp
WhatsApp ¡Estamos aquí!